


1、采集功能:遠程自動采集電量、電流、電壓、功率、功率因數等數據
2、預付費功能:用戶先繳費后用電,欠費自動分閘,繳費自動復電
3、催費功能:聲、光、短信報警,提醒用戶繳費
4、防竊電功能:門控報警,后臺監控現場,預防竊電
5、保電功能:可實現時段和節假日保電。
6、負控功能:可實現隨時手動控制、定值負荷控制功能。
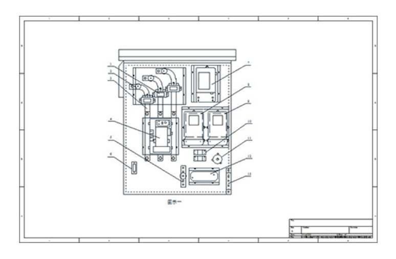
7、一二次功能區分:一次側包含塑殼斷路器、電流互感器及一次母線等,位于箱體左側;二次側有負荷管理終端或售電控制器、電能表、繼電器、接線盒及按鈕指示燈等,位于箱體右側。
|
電源電壓 |
三相四線制AC400V,50Hz |
|
額定電流In |
100A至2500A的各電流等級 |
|
斷路器分斷能力 |
≥20kA |
|
防護等級 |
IP44 |
|
抄表規約 |
DL/T645-1997,DL/T645-2007,IEC1107等 |
|
通信通道 |
GPRS\CDMA\TD-LTE\LTE FDD\撥號(點對點)等 |
|
表位 |
單表位、二表位、三表位 |
|
安裝方式 |
落地或壁掛 |
|
工作溫度 |
-25℃~65℃,極限-40℃~70℃ |
|
空氣相對濕度 |
≤95% |
|
介電強度 |
2500VAC 1分鐘 |
|
沖擊耐壓 (Uimp) |
6kV |
|
絕緣電阻 |
≥5MΩ(濕熱條件下) |
|
使用壽命 |
10年 |